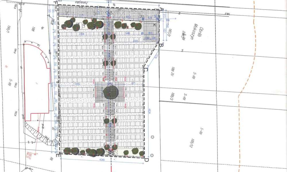
Nowe miejsca pochówku na Cmentarzu Komunalnym Opublikowano: 14 kwiecień 2023 Robert Kurosz W niedalekiej przyszłości planowane jest stworzenie nowych miejsc pochówku na cmentarzu komunalnym. Planowany wygląd można zobaczyć na załączonym rysunku.